เขียนแบบเพื่อขออนุญาตก่อสร้าง และบริการเซ็นต์รับรองจากสถานิกและวิศวกร
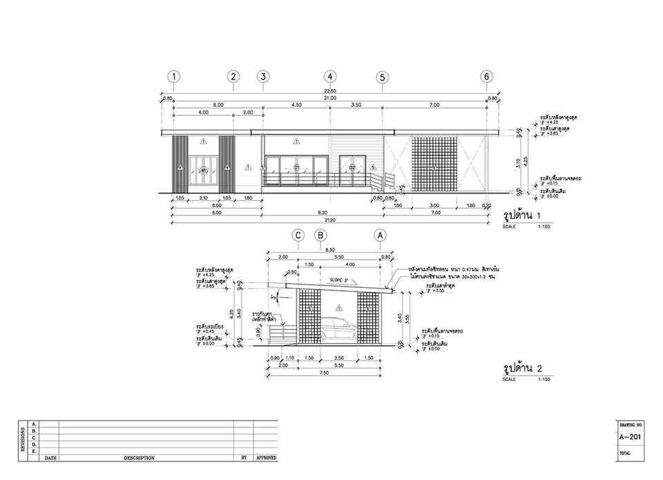
รับเขียนแบบงานสถาปัตยกรรมสำหรับบ้านพักอาศัย อาครพาณิชย์ สำนักงานออฟฟิศ ร้านค้า หรืองานรีโนเวทปรับปรุง โดยสามารถเขียนแบบจาก 3D ที่มีอยู่แล้ว หรือจากสเก็ตซ์มือได้ จัดทำ Shop Drawing เพื่อ Approved ในงานก่อสร้าง และ ถอด BOQ ประเมินราคางบประมาณ รวมถึงจัดทำ TOR หรือ Specification ตามมาตรฐาน CSI ได้ ขั้นตอนการทำงาน 1. ลูกค้าส่งรายละเอียดงาน เช่น แบบร่าง 3D, ภาพสเก็ตซ์, รูปอาคาร, ขนาดพื้นที่, ความต้องการพิเศษ (เช่น ต้องการ TOR หรือถอด BOQ เพิ่ม) 2. เสนองบประมาณและขอบเขตงาน ทางผู้รับจ้างจะประเมินราคา พร้อมระบุขอบเขตงานการให้บริการ เช่น จำนวนแบบ, ประเภทไฟล์, รอบการแก้ไข และวันส่งงาน (พร้มอแนบตัวอย่างงานใกล้เคียง ถ้ามี) 3. เริ่มดำเนินงานตามขอบเขต 4. ขึ้นแบบแปลน 2D/ Shop Drawing/ ถอดแบบ/ ทำ BOQ/ จัดทำ TOR หรือ Spec ตามตกลง 5. ส่งไฟล์ร่างครั้งแรกให้ตรวจสอบ 6. ส่งงานและรับคอมเมนต์จากลูกค้า ลูกค้าสามารถคอมเมนต์และแก้ไขงานในรอบที่รวมในแพกเกจ (1-3 รอบ ขึ้นอยู่กับแพกเกจ)) 7. ส่งไฟล์งานฉบับสมบูรณ์ .PDF, .DWG, .Excel (สำหรับ BOQ) และ Word สำหรับ TOR หรือ Spec 8. หมายเหตุ รับเฉพาะ "เขียนแบบ" และ "ออกแบบเบื้องต้น" สำหรับงานสถาปัตยกรรม, งานที่มี Deadline ชัดเจน ควรแจ้งล่วงหน้าเพื่อการวางแผนเวลา, งานด่วนมีค่าบริการเพิ่มเติม
แพ็กเกจ: 1 แพ็กเกจ
แพ็กเกจ
Basic Package
฿2,500
** รับงานเขียนแบบและออกแบบงานสถาปัตยกรรมจาก 3D หรือ Sketch / 2D-3D / Shop Drawing / BOQ / TOR - เขียนแบบ 2D (AutoCAD) แกะแบบจาก 3D หรือสเก็ตซ์มือ - ขึ้นแบบใหม่จากแนวคิดลูกค้า หรือแบบที่มีอยู่แล้ว - ทำแบบ Shop Drawing พร้อมใช้งานหน้างาน - เขียน TOR และ Specification ตามมาตรฐาน CSI - จัดทำ BOQ สำหรับประเมินราคาเบื้องต้น - ปรับแก้แบบตามคอมเมนต์ลูกค้าอย่างรวดเร็ว
** รับงานเขียนแบบและออกแบบงานสถาปัตยกรรมจาก 3D หรือ Sketch / 2D-3D / Shop Drawing / BOQ / TOR - เขียนแบบ 2D (AutoCAD) แกะแบบจาก 3D หรือสเก็ตซ์มือ - ขึ้นแบบใหม่จากแนวคิดลูกค้า หรือแบบที่มีอยู่แล้ว - ทำแบบ Shop Drawing พร้อมใช้งานหน้างาน - เขียน TOR และ Specification ตามมาตรฐาน CSI - จัดทำ BOQ สำหรับประเมินราคาเบื้องต้น - ปรับแก้แบบตามคอมเมนต์ลูกค้าอย่างรวดเร็ว
ทักแชทเพื่อคุยรายละเอียดและบรีฟงานกับฟรีแลนซ์ได้ทันทีโดยไม่มีค่าใช้จ่าย
ตกลงจ้างงาน โดยขอใบเสนอราคากับฟรีแลนซ์ ตรวจสอบรายละเอียดและชำระเงินได้ทันที
เมื่อฟรีแลนซ์ทำงานตามข้อตกลงและส่งงานขั้น สุดท้ายแล้ว ผู้จ้างสามารถตรวจสอบ ขอแก้ไขหรืออนุมัติได้ตามข้อตกลง
Fastwork เป็นตัวกลางถือเงินของคุณ เพื่อความปลอดภัย และฟรีแลนซ์จะได้รับเงิน หลังจากผู้ว่าจ้างจะกดอนุมัติงานแล้วเท่านั้น!









