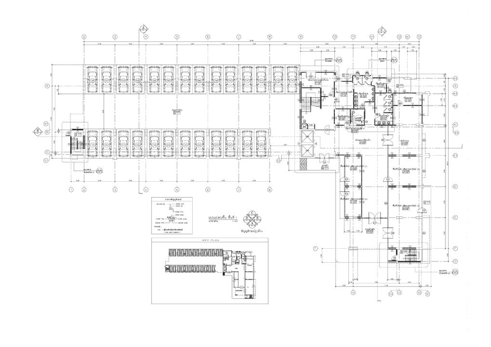
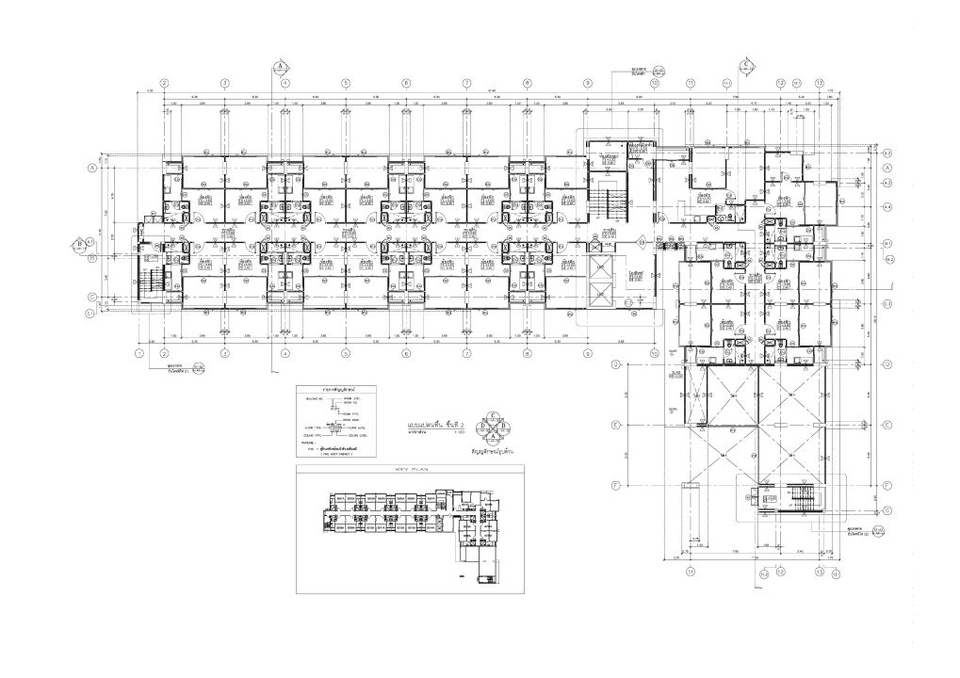
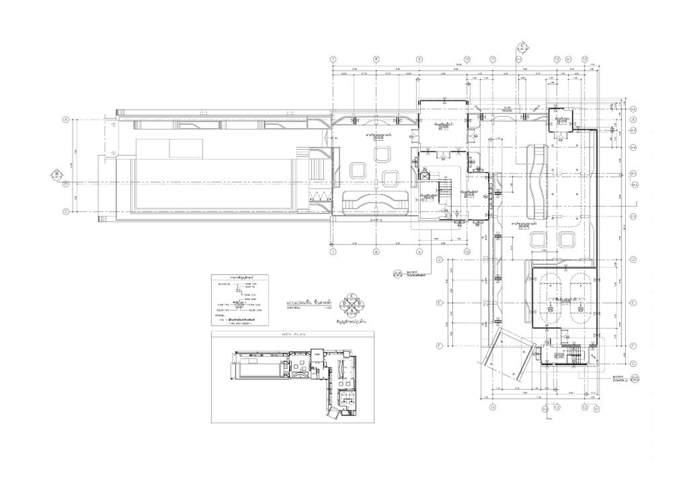
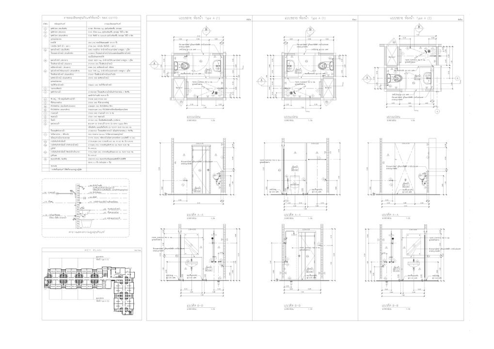
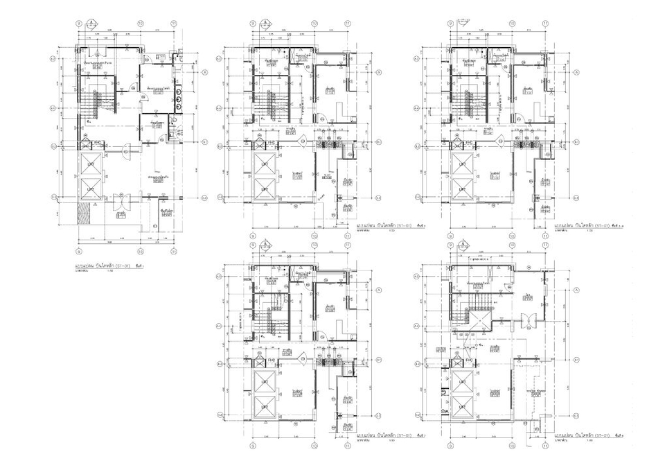
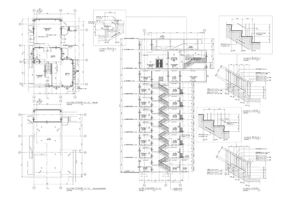
เขียนแบบ 2 มิติ เหมาะสำหรับ ผู้ออกแบบ/สถาปนิก/วิศวกร เพื่อประกอบงานขออนุญาตก่อสร้าง ฯ
ลักษณะงาน/รายละเอียดงาน เขียนแบบ 2 มิติ สำหรับ งานขออนุญาตก่อสร้าง - งานสถาปัตยกรรม - งานวิศวกรรมโครงสร้าง - งานระบบไฟฟ้า/ระบบสุขาภิบาล (รายละเอียดสำหรับขออนุญาตก่อสร้างเท่านั้น) เหมาะสำหรับ ผู้ออกแบบ/สถาปนิก/วิศวกร ประสบการณ์ - ตำแหน่ง CADSTAFF บริษัท นันทวัน จำกัด ลักษณะงาน ShopDrawing กว่า 1-2 ปี - ตำแหน่ง สถาปนิกโครงการ อาคารชุด สูง 7 ชั้น จำนวน 2 อาคาร กว่า 1-2 ปี - ตำแหน่ง สถาปนิก ประจำบริษัท ออกแบบ/เขียนแบบ กว่า 5-10 ปี - ถนัด/ชำนาญ งานเขียนแบบ 2 มิติ สำหรับ งานขออนุญาตก่อสร้าง ขั้นตอนการทำงาน - รับ/ศึกษาแบบที่ผ่านการออกแบบเบื้องต้นมาแล้ว เช่น แบบแปลน/รูปด้าน 1-2 ด้าน ฯ - ทำความเข้าใจกับทางผู้ว่าจ้าง เรื่อง งานที่ผู้ว่าจ้างจะได้รับ/เวลาที่กำหนด/ค่าตอบแทน ฯ ก่อนรับงาน - รับงานจากผู้ว่าจ้าง เขียนแบบ พร้อมแจ้งสถานะงานตามแต่ตกลง - ส่งงานให้ผู้ว่าจ้างตรวจสอบ/แก้ไข จำนวน 1-2 ครั้ง หรือตามแต่ตกลง - ส่งมอบงาน ตามเงื่อนไข 1. ไฟล์งาน รูปแบบ*.Pdf 2. ไฟล์งาน รูปแบบ*.dwg สิ่งที่ต้องการจากผู้ว่าจ้าง - แบบร่าง *.pdf / *.jpg / *.dwg / *.skp จากผู้ว่าจ้าง - รายละเอียดประกอบงานก่อสร้างอื่นๆ จากทางผู้ว่าจ้าง - กำหนด วัน/เวลา/ค่าตอบแทน ก่อนดำเนินการ
ประสบการณ์ทำงานที่ผ่านมา - สถาปนิก บริษัท ออกแบบ/เขียนแบบ - สถาปนิกโครงการฯ ก่อสร้าง อาคารชุด สูง 7 ชั้น 2อาคาร - CADSTAFF บริษัท นันทวัน จำกัด ประวัติการศึกษา - คอบ. สถาบันเทคโนโลยีพระจอมเกล้าเจ้าคุณทหารลาดกระบัง - ปวช.-ปวส. โรงเรียนไทยวิจิตรศิลป เชียงใหม่
ประสบการณ์ทำงานที่ผ่านมา - สถาปนิก บริษัท ออกแบบ/เขียนแบบ - สถาปนิกโครงการฯ ก่อสร้าง อาคารชุด สูง 7 ชั้น 2อาคาร - CADSTAFF บริษัท นันทวัน จำกัด ประวัติการศึกษา - คอบ. สถาบันเทคโนโลยีพระจอมเกล้าเจ้าคุณทหารลาดกระบัง - ปวช.-ปวส. โรงเรียนไทยวิจิตรศิลป เชียงใหม่
ทักแชทเพื่อคุยรายละเอียดและบรีฟงานกับฟรีแลนซ์ได้ทันทีโดยไม่มีค่าใช้จ่าย
ตกลงจ้างงาน โดยขอใบเสนอราคากับฟรีแลนซ์ ตรวจสอบรายละเอียดและชำระเงินได้ทันที
เมื่อฟรีแลนซ์ทำงานตามข้อตกลงและส่งงานขั้น สุดท้ายแล้ว ผู้จ้างสามารถตรวจสอบ ขอแก้ไขหรืออนุมัติได้ตามข้อตกลง
Fastwork เป็นตัวกลางถือเงินของคุณ เพื่อความปลอดภัย และฟรีแลนซ์จะได้รับเงิน หลังจากผู้ว่าจ้างจะกดอนุมัติงานแล้วเท่านั้น!











