สามัญวิศวกร ออกแบบและคำนวณงานระบบไฟฟ้าและไฟฟ้าสื่อสารประเภทอาคาร สำนักงาน,โรงงาน,บ้านพักอาศัย
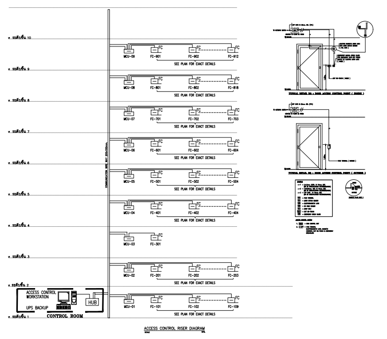
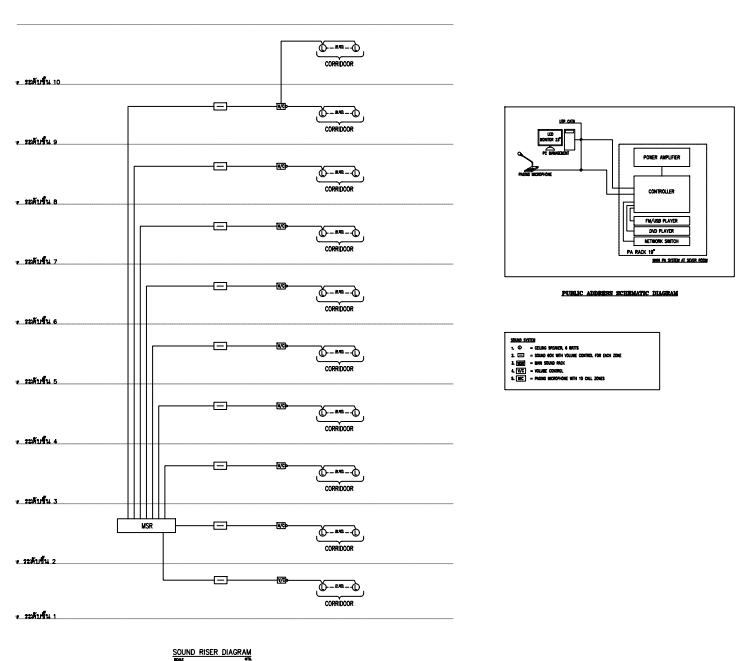
- จบวิศวกรรมศาสตร์บัณฑิต มหาลัยศรีปทุม - มีประสบการณ์ในงานออกแบบ 14 ปี ถูกต้องตามหลักวิชาการและมาตรฐานวิศวกรรมสถานแห่งประเทศไทย (วสท.) 2564 - ผลงานออกแบบส่วนใหญ่ประกอบด้วย ที่พักอาศัย, โรงแรม, โรงพยาบาล - สำหรับ รับออกแบบและคำนวณพร้อมประมาณราคางานระบบไฟฟ้าและระบบไฟฟ้าสื่อสาร รายละเอียดดังนี้ - ออกแบบแผนผังระบบไฟฟ้าและไฟฟ้าสื่อสาร(Single Line Digram and Riser Diagram) ตารางโหลดไฟฟ้าและรายการคำนวณ พร้อมเซ็นรับรอง โดย สามัญวิศวกร เลขที่ สฟก.6394 - ออกแบบระบบแสงสว่าง (Lighting) ตามมาตรฐาน TIEA โดยยึดตามฟังก์ชั่น พร้อมตัวอย่างโคมไฟ - จัดวางระบบเต้ารับไฟฟ้าโดยยึดตามฟังก์ชั่นการใช้งาน (Outlet) - จัดเตรียมระบบไฟฟ้าเพื่อสำหรับระบบปรับอากาศและระบายอากาศ (Junction for AC) - ออกแบบระบบแสงสว่างฉุกเฉินและป้ายทางออกฉุกเฉิน(Battlight and Exit sign) ในพื้นที่ที่บังคับตามกฎหมาย โดยเป็นไปตามมาตรฐานระบบไฟฟ้าแสงสว่างฉุกเฉิน และโคมไฟฟ้าป้ายทางออกฉุกเฉิน - ออกแบบระบบแจ้งเหตุเพลิงไหม้(Fire Alarm System) ตามมาตรฐานระบบแจ้งเหตุเพลิงไหม้ - ออกแบบระบบล่อฟ้า(Lightning Protection) ตามมาตรฐานการป้องกันฟ้าผ่า - ออกแบบระบบกราวด์(Grounding System) - ออกแบบระบบไฟฟ้าสื่อสารภายในอาคารอื่นๆ ดังนี้ 1. กระจายเสียงภายในอาคาร 2. ออกแบบระบบกล้องโทรทัศน์วงจรปิด 3. ออกแบบระบบโทรศัพท์และระบบคอมพิวเตอร์ 4. ออกแบบระบบ BAS 5. ออกแบบระบบ โสตทัศนูปกรณ์ 6. รับทำ BOQ + พร้อมรายการประกอบแบบ ขั้นตอนการทำงาน 1. พูดคุยรายละเอียดความต้องการของงาน, Budget และภาพรวม 2. นำส่งแนวคิดการออกแบบ 3. นำส่ง First Draft 4. นำส่ง Final File (AutoCAD + PDF) และ A3(Optional) หมายเหตุ มีทีมให้คำปรึกษาและออกแบบ - สถาปนิก - วิศวกรโครงสร้าง - วิศวกรเครื่องกล - วิศกรสิงแวดล้อม
แพ็กเกจ: 3 แพ็กเกจ
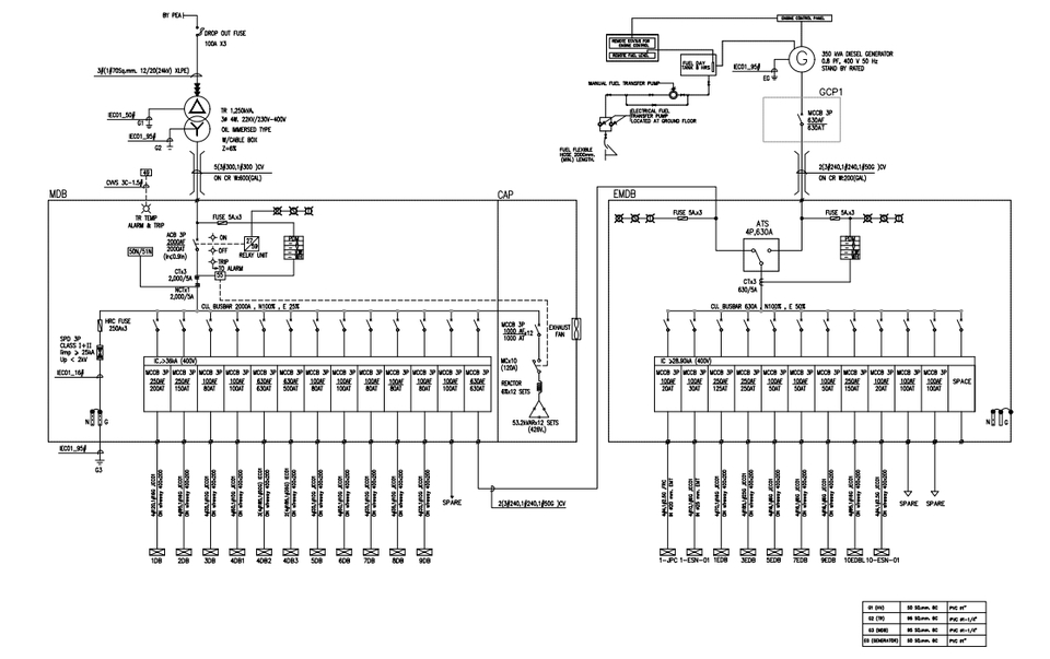
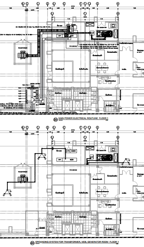
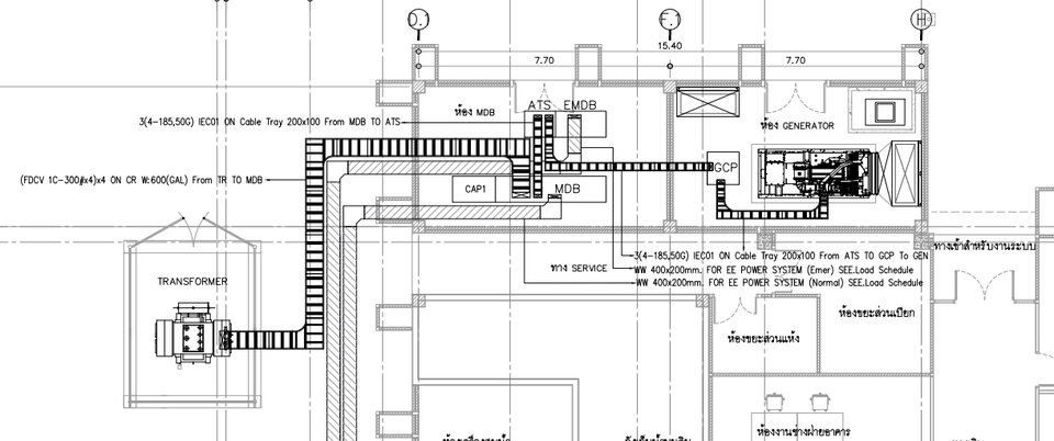
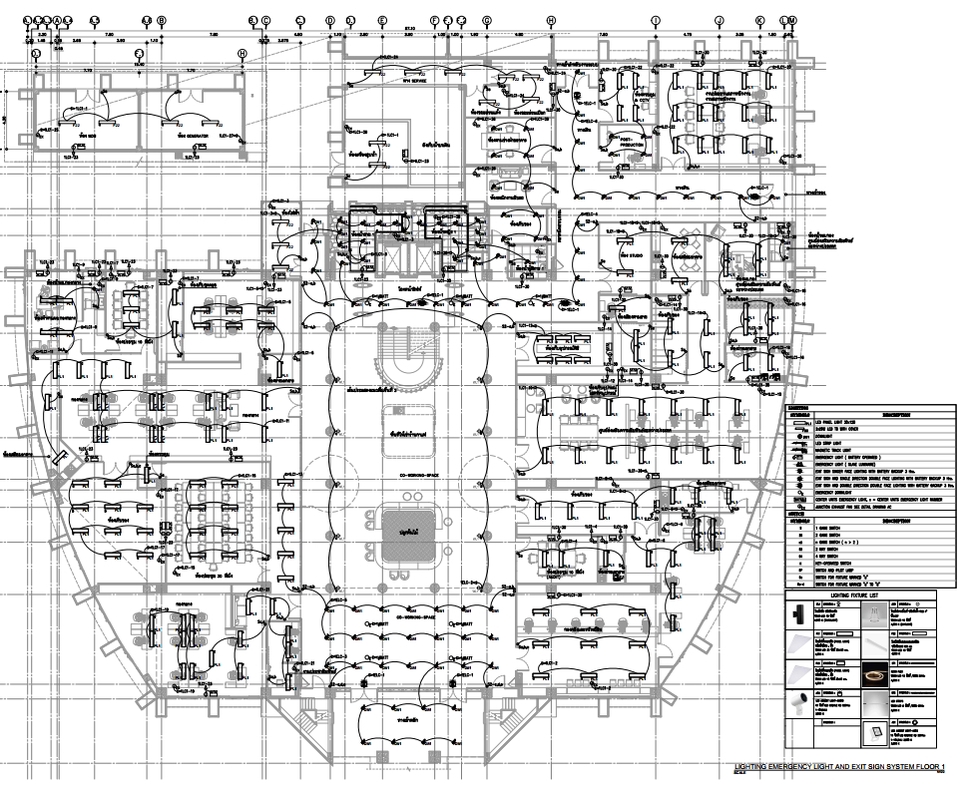
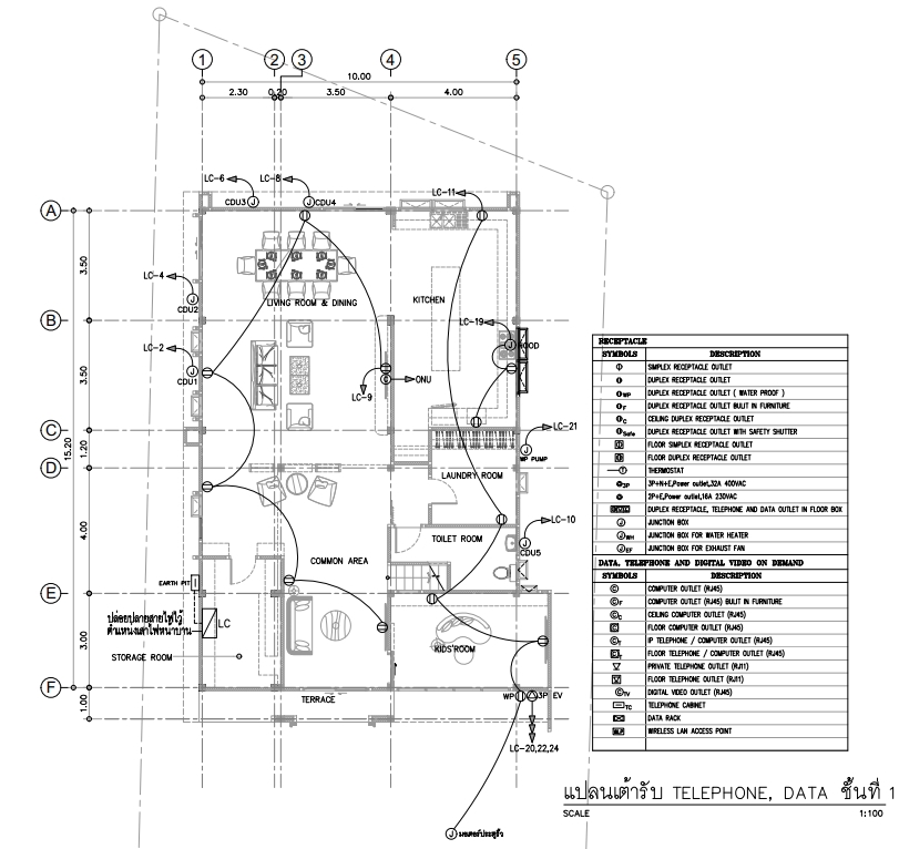
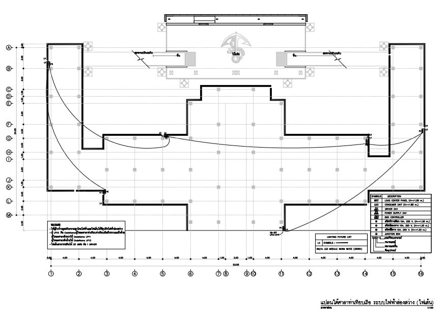
ออกแบบระบบไฟฟ้าของงานระบบไฟฟ้าแรงต่ำภายในอาคาร
฿3,000คำนวณและเขียนแบบงานระบบไฟฟ้า ภายในอาคารและโรงงานอุตสาหกรรม ตามมาตรฐาน วสท.2564
ออกแบบและเขียนแบบงานระบบไฟฟ้า พร้อมเซ็นรับรองแบบ
฿5,000ออกแบบและเขียนแบบงานระบบไฟฟ้าพร้อมเซ็นรับรอง
งานออกแบบระบบ Solar System
฿3,000ขียนแบบงานระบบ Solar Rooftop, Solar Farm, Solar System
เราสามัญวิศวกรไฟฟ้า เลขที่ใบอนุญาติ สฟก.4394 ทำงานด้านออกแบบงานระบบไฟฟ้ากำลังและสื่อสาร สามารถออกแบบและเขียนแบบ รวมไปถึงให้คำปรึกษา ในด้านงานระบบไฟฟ้า อาคาร บ้าน คอนโด ออฟฟิศ สำนักงาน โรงแรม และ โรงพยาบาล ซึ่งมีประสบการณ์ในด้านนี้มามากกว่า 14 ปี มั่นใจได้ว่าจะได้รับงานที่ถูกต้องตามมาตรฐาน วสท 2564 และ มาตรฐานการไฟฟ้า กฟน กฟภ
เราสามัญวิศวกรไฟฟ้า เลขที่ใบอนุญาติ สฟก.4394 ทำงานด้านออกแบบงานระบบไฟฟ้ากำลังและสื่อสาร สามารถออกแบบและเขียนแบบ รวมไปถึงให้คำปรึกษา ในด้านงานระบบไฟฟ้า อาคาร บ้าน คอนโด ออฟฟิศ สำนักงาน โรงแรม และ โรงพยาบาล ซึ่งมีประสบการณ์ในด้านนี้มามากกว่า 14 ปี มั่นใจได้ว่าจะได้รับงานที่ถูกต้องตามมาตรฐาน วสท 2564 และ มาตรฐานการไฟฟ้า กฟน กฟภ
ทักแชทเพื่อคุยรายละเอียดและบรีฟงานกับฟรีแลนซ์ได้ทันทีโดยไม่มีค่าใช้จ่าย
ตกลงจ้างงาน โดยขอใบเสนอราคากับฟรีแลนซ์ ตรวจสอบรายละเอียดและชำระเงินได้ทันที
เมื่อฟรีแลนซ์ทำงานตามข้อตกลงและส่งงานขั้น สุดท้ายแล้ว ผู้จ้างสามารถตรวจสอบ ขอแก้ไขหรืออนุมัติได้ตามข้อตกลง
Fastwork เป็นตัวกลางถือเงินของคุณ เพื่อความปลอดภัย และฟรีแลนซ์จะได้รับเงิน หลังจากผู้ว่าจ้างจะกดอนุมัติงานแล้วเท่านั้น!






























