งานออกแบบระบบไฟฟ้าและสื่อสาร
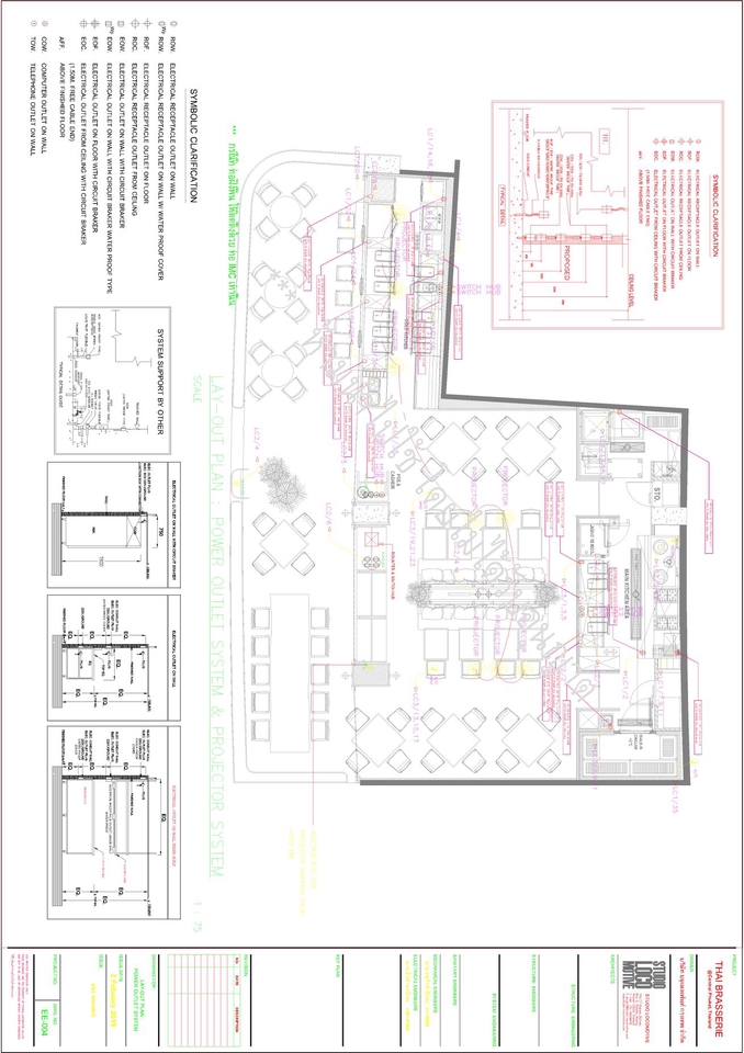
A. รับงานออกแบบและเขียนแบบสำหรับระบบประกอบอาคาร เพื่อใช้สำหรับยื่นขออนุญาตก่อสร้างและแบบก่อสร้าง ดังนี้ 1. ระบบงานระบบไฟฟ้าและสื่อสาร 2. ระบบประปาและสุขาภิบาล 3. ระบบปรับอากาศและระบายอากาศ B. รับงานตรวจสอบแบบและเซ็นต์รับรองแบบเพื่อยื่นขออนุญาต C. จัดทำตารางโหลดไฟฟ้าและ Single line diagram เพื่อยื่นเอกสารประกอบการขอไฟกับการไฟฟ้า D. Project Design (ผลงานออกแบบงานระบบไฟฟ้า, ประปา, เครื่องปรับอากาศ โดยสังเขป) 1. La Vows Hotel, ชะอำ เพชรบุรี 2. Por Hotel, โคราช นครราชศรีมา 3. Nathawan Pool Access, ราไวย์ ภูเก็ต 4. Kho Lak Villa, เขาหลัก พังงา 5. Monkey Pod Restaurant, เขตวัฒนา กรุงเทพมหานคร 6. 2 House Story, เมือง ภูเก็ต 7. For Freedom International, กระทู้ ภูเก็ต 8. Solar Cells System Headstart International School, กระทู้ ภูเก็ต 9. ศูนย์บริการ York Yangyon, ฉลอง ภูเก็ต 10. คลินิคทันตกรรม ขนาดพื้นที่ 2 ชั้น - นครนายก 11. ร้านอาหารสุกี้จินดา - ภูเก็ต 12. รพ. สัตว์นครนายก 13. ร้านพันละวัน สีลมเอจ 14. ร้านเซียนเตี๋ยว ฟิวเจอร์ปาร์ค รังสิต 15. ร้านเนื้อแท้ BUTCHERY 16. โรงเรียนสาธิต มทร.ธัญบุรี 17. อื่น ๆ ขั้นตอนการทำงาน 1. ขอรายละเอียดงานออกแบบระบบ เพื่อนำเสนอราคา 2. นำเสนอใบเสนอราคาเพื่อให้ลูกค้าพิจารณา 3. ตกลงราคาและว่าจ้างงาน 4. ลูกค้าต้องนำส่งไฟล์ Cad งานสถาปัตยกรรมและข้อมูลอื่นๆ เพื่อนำมาออกแบบและเขียนแบบงานระบบต่อไป
แพ็กเกจ: 3 แพ็กเกจ
แพ็กเกจ
งานออกแบบและเขียนแบบระบบไฟฟ้า/สื่อสาร
งานทำราคากลาง BOQ แบบระบบไฟฟ้า/สื่อสาร, ระบบประปา/สุขาภิบาล, ระบบปรับอากาศ/ระบายอากาศ
งานตรวจสอบแบบและเซ็นต์รับรองแบบระบบไฟฟ้า หรือจัดทำตารางโหลดไฟฟ้าและ Single line diagram เพื่อยื่นการไฟฟ้า
฿5,000
฿6,000
฿15,000
- จบ ป.ตรี คณะวิศวกรรมศาสตร์ สาขาวิศวกรรมไฟฟ้า ปัจจุบันถือใบประกอบวิชาชีพระดับสามัญวิศวกรไฟฟ้า - ประสบการณ์การทำงาน 13 ปี ทั้งในส่วนของผู้รับเหมา,ที่ปรึกษาโครงการและงานออกแบบ - ประเภทงานออกแบบงานระบบ MEP ที่ผ่านมา (โรงแรม / บ้านพักอาศัย / โรงพยาบาลสัตว์ / คลินิกฟัน / คลินิกศัลยกรรมความงาม / ร้านอาหาร / โรงเรียน / ท่าเรือ)
- จบ ป.ตรี คณะวิศวกรรมศาสตร์ สาขาวิศวกรรมไฟฟ้า ปัจจุบันถือใบประกอบวิชาชีพระดับสามัญวิศวกรไฟฟ้า - ประสบการณ์การทำงาน 13 ปี ทั้งในส่วนของผู้รับเหมา,ที่ปรึกษาโครงการและงานออกแบบ - ประเภทงานออกแบบงานระบบ MEP ที่ผ่านมา (โรงแรม / บ้านพักอาศัย / โรงพยาบาลสัตว์ / คลินิกฟัน / คลินิกศัลยกรรมความงาม / ร้านอาหาร / โรงเรียน / ท่าเรือ)
ทักแชทเพื่อคุยรายละเอียดและบรีฟงานกับฟรีแลนซ์ได้ทันทีโดยไม่มีค่าใช้จ่าย
ตกลงจ้างงาน โดยขอใบเสนอราคากับฟรีแลนซ์ ตรวจสอบรายละเอียดและชำระเงินได้ทันที
เมื่อฟรีแลนซ์ทำงานตามข้อตกลงและส่งงานขั้น สุดท้ายแล้ว ผู้จ้างสามารถตรวจสอบ ขอแก้ไขหรืออนุมัติได้ตามข้อตกลง
Fastwork เป็นตัวกลางถือเงินของคุณ เพื่อความปลอดภัย และฟรีแลนซ์จะได้รับเงิน หลังจากผู้ว่าจ้างจะกดอนุมัติงานแล้วเท่านั้น!































