ออกแบบเขียนแบบ บ้าน อาคารพานิชย์ โรงแรม โรงงาน กำแพงกันดิน รับรองโครงสร้างทำรายการคำนวณโซลาร์รูฟ BOQ
-วิศวกรโยธา กองบริการกลาง มหาวิทยาลัยเกษตรศาสตร์ -มีใบประกอบวิชาชีพวิศวกรรมควบคุม -ออกแบบ เขียนแบบ บ้าน อาคารพานิชย์ โรงงาน โรงแรม รับรองโครงสร้าง ทำรายการคำนวณโครงสร้าง เพื่อยื่นขออนุญาตก่อสร้าง ทำประมาณราคา BOQ 1.บริการออกแบบ 3D Sketchup เพื่อดูรูปร่างอาคาร สรุปแบบ 3D เรียบร้อย ทำแบบเพื่อขออนุญาตก่อสร้าง และทำ BOQ รวมถึง รายการคำนวณโครงสร้าง ลูกค้าจะได้รับ 1. บริการออกแบบเขียนแบบโครงสร้าง รับรองโครงสร้าง รายการคำนวณ 1.1.แบบ 3 มิติ เพื่อดูรูปร่างอาคาร และสรุปแบบได้ 1.2. แบบขออนุญาตก่อสร้าง 2 มิติเป็นไฟล์ PDF และ ไฟล์ .skp .layout 1.3. รูปเล่ม รายการคำนวณโครงสร้าง พร้อมเซนต์รับรองรายการคำนวณทางวิศวกรรม ในแบบก่อสร้างครบชุด 1.4. ทำรายการคำนวณโครงสร้าง พร้อมเซนต์รายการคำนวณ กรณีลูกค้าไม่ต้องการแบบ โดยลูกค้าจะได้รับรายการคำนวณพร้อมเซนต์รับรองรายการคำนวณ 2. บริการออกแบบ เขียนแบบสถาปัตย์ รับรองแบบสถาปัตยกรรมหลัก 2.1.แบบ 3 มิติ เพื่อดูรูปร่างอาคาร และสรุปแบบได้ 2.2. แบบขออนุญาตก่อสร้าง 2 มิติเป็นไฟล์ PDF และ ไฟล์ .skp .layout 2.3. เอกสารสถาปนิก พร้อมเซนต์รับรองในแบบก่อสร้างครบชุด 3.บริการรับถอดแบบ ประมาณราคา จัดทำ BOQ งานก่อสร้างอาคาร 3.1. BOQ สำหรับงานก่อสร้าง รวมงานโครงสร้าง งานสถาปัตย์ งานระบบไฟฟ้า งานระบบสุขาภิบาล เป็นไฟล์ Excel หากลูกค้าต้องการใช้สำหรับยื่นสินเชื่อกับสถาบันทางการเงิน สามารถทำราคาให้ตามที่ลูกค้าต้องการ ขั้นตอนการทำงาน 1. รับงานจากลูกค้า ตรวจสอบงาน 2. กำหนดขอบเขตงาน ประมาณราคา 3. กำหนดขอบเขตขั้นตอนการส่งมอบงาน กำหนดเวลา และลักษณะการส่งงาน 4. ตกลงค่าใช้จ่าย เงื่อนไขการจ่าย ทำสัญญาในระบบ 5. ส่งมอบงานให้ลูกค้าตามเวลาที่กำหนด
แพ็กเกจ: 3 แพ็กเกจ
แพ็กเกจ
แบบก่อสร้าง
แบบครบชุด โครงสร้าง สถาปัตย์ ไฟฟ้า สุขาภิบาล
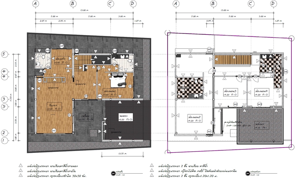
แบบขออนุญาตก่อสร้าง แบบโครงสร้าง สถาปัตย์ ไฟฟ้า สุขาภิบาล รายการคำนวณ รับรองแบบ
฿3,000
฿3,500
฿6,000
วิศวกรโยธากองบริการกลาง มหาวิทยาลัยเกษตรศาสตร์ มีใบประกอบวิชาชีพวิศวกรรมควบคุม ประสบการณ์ 10 ปี ออกแบบ เขียนแบบ 3 มิติ แบบเพื่อขออนุญาตก่อสร้าง รายการคำนวณโครงสร้าง รับรองโครงสร้าง บ้าน อาคารพาณิชย์ โกดัง โรงงาน โรงแรม หอพัก
วิศวกรโยธากองบริการกลาง มหาวิทยาลัยเกษตรศาสตร์ มีใบประกอบวิชาชีพวิศวกรรมควบคุม ประสบการณ์ 10 ปี ออกแบบ เขียนแบบ 3 มิติ แบบเพื่อขออนุญาตก่อสร้าง รายการคำนวณโครงสร้าง รับรองโครงสร้าง บ้าน อาคารพาณิชย์ โกดัง โรงงาน โรงแรม หอพัก
ทักแชทเพื่อคุยรายละเอียดและบรีฟงานกับฟรีแลนซ์ได้ทันทีโดยไม่มีค่าใช้จ่าย
ตกลงจ้างงาน โดยขอใบเสนอราคากับฟรีแลนซ์ ตรวจสอบรายละเอียดและชำระเงินได้ทันที
เมื่อฟรีแลนซ์ทำงานตามข้อตกลงและส่งงานขั้น สุดท้ายแล้ว ผู้จ้างสามารถตรวจสอบ ขอแก้ไขหรืออนุมัติได้ตามข้อตกลง
Fastwork เป็นตัวกลางถือเงินของคุณ เพื่อความปลอดภัย และฟรีแลนซ์จะได้รับเงิน หลังจากผู้ว่าจ้างจะกดอนุมัติงานแล้วเท่านั้น!
































