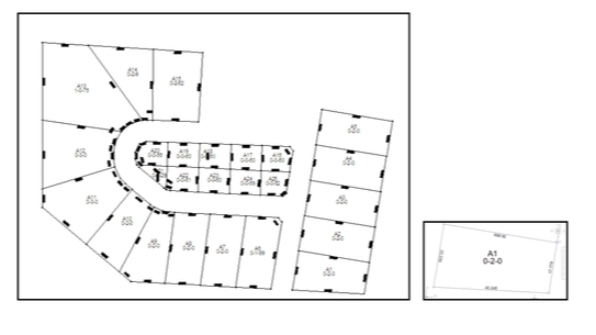
เข้าเข้าพิกัด ,แบ่งแปลงที่ดิน, จัดสรรที่ดิน ,แบบโฉนด
รับนำเข้าพิกัดจาก กรมที่ดิน ขอเป็นไฟล์ Excel และมีค่า xyz เป็น CAD .dwg หลายครั้งขายที่ดินแปลงใหญ่ขายออกยาก ทำแบบนี้จะขายได้เร็วกว่า #แบ่งที่ดินเป็นแปลงเล็กๆ จะขายง่ายกว่า แบ่งให้เป็นขนาดที่ดิรู้ขนาด รู้ระยะ รู้ความลึก ก่อนรังวัดจริงนตามที่คุณต้องการ ขั้นตอนการทำงาน 1. 1. ลูกค้าส่งพิกัดและหมุดแปลงที่ดิน พร้อมโฉนด ขอมูล รว.9 หรือ รว.25จ 2. 2. ลูกค้าระบุความต้องการจำนวนแปลงหรือ แปลงละกี่ ตารางวา หน้ากว้างถนน 3. 3. ส่งรายละเอียดแบบร่างให้ดูก่อน สามารถปรับเปลี่ยนการแบ่งได้ 4. 4.เมื่อลูกค้าตกลงกับแบบ ส่งงาน
แพ็กเกจ: 3 แพ็กเกจ
แพ็กเกจ
เริ่มต้นไม่เกิน 9 แปลง
แบ่งแปลง 20 แปลง
30 แปลง
฿1,500
฿2,500
฿3,500
1. รับ import file PDF เข้า AutoCAD ทำงานได้รวดเร็ว ราคาถูก ประสบการณ์การทำด้านโปรแกรมเสริม ฟังก์ชั่น Import PDF มีอยู่ใน CAD version ตั้งแต่ 2018 เป็นต้นมา แต่สามารถเลือกได้ครั้งละเพียง 1 แผ่น ทำให้การเตรียมไฟล์ล่าช้าอย่างมาก เพิ่มฟีเจอร์ให้สามารถเลือก import ได้ครั้งละหลายๆ แผ่น *ไม่ใช่การเขียนแบบใหม่ ฟอร์นจะไม่ได้ * 2.แก้ไขไฟล์งาน DWG งานเล็กๆ น้อย
1. รับ import file PDF เข้า AutoCAD ทำงานได้รวดเร็ว ราคาถูก ประสบการณ์การทำด้านโปรแกรมเสริม ฟังก์ชั่น Import PDF มีอยู่ใน CAD version ตั้งแต่ 2018 เป็นต้นมา แต่สามารถเลือกได้ครั้งละเพียง 1 แผ่น ทำให้การเตรียมไฟล์ล่าช้าอย่างมาก เพิ่มฟีเจอร์ให้สามารถเลือก import ได้ครั้งละหลายๆ แผ่น *ไม่ใช่การเขียนแบบใหม่ ฟอร์นจะไม่ได้ * 2.แก้ไขไฟล์งาน DWG งานเล็กๆ น้อย
ทักแชทเพื่อคุยรายละเอียดและบรีฟงานกับฟรีแลนซ์ได้ทันทีโดยไม่มีค่าใช้จ่าย
ตกลงจ้างงาน โดยขอใบเสนอราคากับฟรีแลนซ์ ตรวจสอบรายละเอียดและชำระเงินได้ทันที
เมื่อฟรีแลนซ์ทำงานตามข้อตกลงและส่งงานขั้น สุดท้ายแล้ว ผู้จ้างสามารถตรวจสอบ ขอแก้ไขหรืออนุมัติได้ตามข้อตกลง
Fastwork เป็นตัวกลางถือเงินของคุณ เพื่อความปลอดภัย และฟรีแลนซ์จะได้รับเงิน หลังจากผู้ว่าจ้างจะกดอนุมัติงานแล้วเท่านั้น!





